Klinikum Neuperlach | Umbau der Röntgendiagnostik
Auftraggeber: München Klinik gGmbH
(vormals: Städtisches Klinikum München GmbH)
Standort: München
Leistungen: Lph 1-8
NF: ca. 213 m2 | BRI: ca. 716 m3
Fotografie: ©ULLMER ARCHITEKTEN
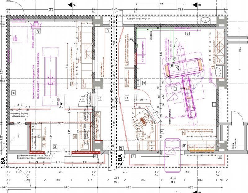
Umbau der Röntgendiagnostik für die Erneurung der CT-Räume zur Aufstellung von zwei CT Geräten im Klinikum Neuperlach, in München
Im Klinikum Neuperlach soll in der Radiologieabteilung der veraltete Computertomograph durch ein neues Highend-Gerät ersetzt werden. Zur Sicherstellung eines durchgehenden CT-Betriebs während des Umbaus gliedert sich die Maßnahme in drei Bauabschnitte.
Im ersten Schritt wird ein Bestandsröntgenraum zu einem neuen Schockraum umgebaut. Mit Verlagerung des Schockraums in die neue Fläche, kann der alte Schockraum zum „Ausweich-CT“- Raum hergerichtet werden. Nach Inbetriebnahme des „Ausweich-CTs“ kann dann im dritten Bauabschnitt der Bestands-CT-Raum mit seinen Nebenräumen für das neue Highend-Gerät umgebaut werden.
Im Zuge der Neugestaltung der CT-Räume werden auch die Sanitäranlagen und Umkleiden für die Patienten, sowie die zu den CT-Räumen gehörenden Schalt- und Vorbereitungsräume an die neuen Anforderungen angepasst:
Vergleichbare Projekte
