Rahmenvertragsleistungen für die Bundesagentur für Arbeit für die Region 6 Bayern Süd
Auftraggeber: Bundesagentur für Arbeit | vertreten durch
BA - Gebäude- Bau- und Immobilienmanagement GmbH
Standort: München | Freising | Rosenheim | Augsburg | Ingolstadt | Weilheim | Freising | Donauwörth | Kempten | Memmingen
Leistungen: Lph 1-3 | 5-9 | teilw. 4
Einzelmaßnahmen bis ca. 1.000 m2 BGF
Fotografie: ©ULLMER ARCHITEKTEN
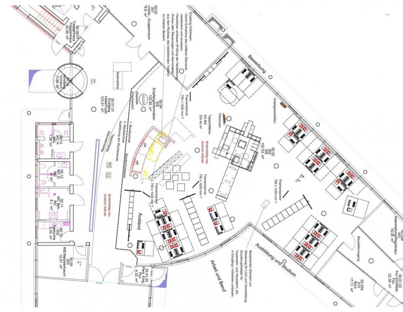
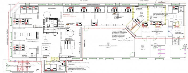
Rahmenvertrag für Architekten- und Generalplanerleistungen im Bauunterhalt (BUN) und für kleine Neu-, Um- und
Erweiterungsbaumaßnahmen (KLM) für die Bundesagentur für Arbeit
für die Region 6 Bayern Süd 2013 - 2020
Seit Beginn des Leistungszeitraumes im Januar 2013 wurden ca. 90 Einzelprojekte geplant,
ausgeschrieben und durchgeführt. Die Baudurchführung erfolgte im laufenden Betrieb.
Vergleichbare Projekte
