Cookie policy
München Klinik Neuperlach - Umbau der Notaufnahme zu einem Notaufnahmezentrum
München Klinik Schwabing - Umbau ehem. HNO OPs in ein Herzkatheterlabor
Seniorenheim "Heinzelmannstift"
Klinikum Bogenhausen München | Gastroenterologie | Pneumologie
Sana Klinik München-Sendling
Klinikum Neuperlach | Umbau der Röntgendiagnostik
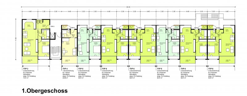
Clearinghaus Plinganserstraße in München
Klinikum München Umbau Gastro-/Bronchoskopie - Bauvorbereitende Massnahmen
Klinikum Bogenhausen München | Zentralumkleiden
Klinikum Bogenhausen München | Umbau der Nukleardiagnostik
Errichtung einer Seniorenwohnanlage und Tagespflege in Ismaning
Neubau Psychiatrie in Haar, 4. Preis
Neubau Alterszentrum Gremm in Teufen, Schweiz
Seniorenheim "Heinzelmannstift" 1.Preis
Neubau eines Wohnhauses für zwei Personen als Niedrigenergiehaus
Wohn- und Wohnpflegeheim, Werkstätten und Förderstätte in Altdorf, 4.Preis
Städtebaulicher Ideenwettbewerb mit Realisierungsteil „Modellvorhaben Mitterfeld“, Rosenheim, 1.Preis
Baukünstlerischer Wettbewerb Altenpflegeheim Oberndorf (AT), Ankauf
Städtebaulicher und landschaftsplanerischer Ideenwettbewerb Waldmann-Stetten-Kaserne München, 1. Ankauf
Städtebaulicher Ideen- und Realisierungswettbewerb für das Gelände der Pflugfabrik westlich des Lechs, Landsberg am Lech
Städtebaulicher Ideenwettbewerb Neubaugebiet „Gerbersleithe“ Marktgemeinde Weisendorf, 2. Preis