„Erich-Kästner-Realschule“ | Brandschutz- Akustikmassnahmen | WC-Sanierung
Auftraggeber: Landeshauptstadt München, Referat für Bildung und Sport
vertreten durch Landeshauptstadt München Baureferat, Hochbau H4
Standort: München
Leistungen: Lph 3-8
NF ca. 4.547 m2 | BGFa: ca. 7.050. m2 | BRI: ca.23.700 m3
Fotografie: ©ULLMER ARCHITEKTEN
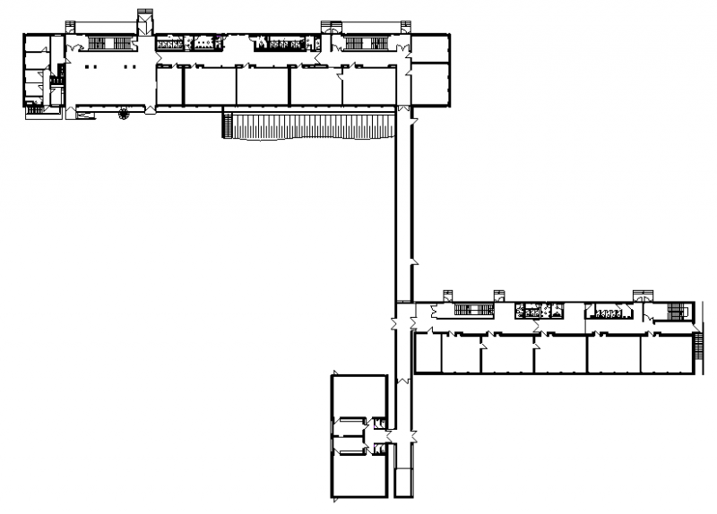
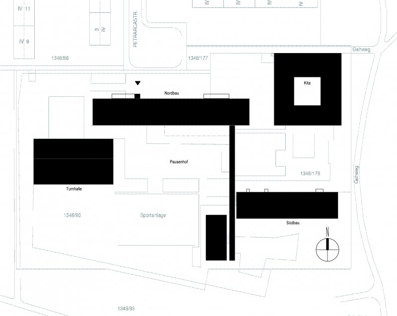
Die Erich Kästner Realschule in München wurde 1960-1962 errichtet. Die Schulanlage besteht aus Hauptgebäude, Nebengebäude, Chemietrakt und 1-fach Sporthalle. Haupt- und Nebengebäude sind über einen ursprünglich
offenen Gang verbunden. Dieser wurde später verglast.
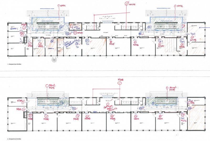
In der Schule sind jeweils pro Bauteil zwei bauliche Treppenanlagen im Gebäude vorhanden. Diese Treppenanlagen sind jedoch nicht als Treppenraum abgeschlossen (offene Treppenräume).
Folgende bauliche Veränderungen zur Erfüllung des vorbeugenden Brandschutzes sind vorgesehen.
- Einhausung der "offenen" Treppenräume (notwendige Treppenräume)
- Erweiterung der Treppenräume im 1.OG Nordbau, Neubau von Umgängen
- Einbau von Rauchschutz-und Fluchttüren gemäß Brandschutzkonzept
- Einbau einer RWA-Anlage jeweils in den Treppenräumen
- Errichtung neuer Fluchttreppen
- Ertüchtigung der vorhandenen Türen (z.T. Röhrenspan)
- Ertüchtigung der Raumakustik in den Klassenräumen durch
Nachrüstung von Akustikdecken
- Ergänzung von Außentreppen für Fluchtwege aus Kellergeschoßen
- Demontage der vorhandenen abgehängten Decken und Einbau neuer F30 Decken
Sämtliche WC Anlagen sind nicht mehr auf zeitgemäßem Niveau und werden im Zuge der Brandschutzmaßnahmen ebenfalls erneuert.
Die Maßnahmen werden in mehreren Bauabschnitten in Abstimmung mit den Ferienzeiten durchgeführt. Zum Teil laufen die Arbeiten während des laufenden Schulbetriebes.
Sämtliche Fenster der Nordfassaden werden ebenfalls ausgetauscht
Vergleichbare Projekte
